Beschrijving

Starters opgelet: Aan de Steenakkers in Tynaarlo staat deze fraaie tussenwoning te koop, compleet met een vrijstaand tuinhuis en sfeervolle veranda, gelegen op een ruim perceel van 201 m².
 
Deze woning, gebouwd in 1967, heeft een woonoppervlak van ca. 93m2, 3 slaapkamers, een modern toilet en moderne badkamer (2017), airconditioning in de woonkamer, 10 zonnepanelen, voorzien van kunststof kozijnen en energielabel C.
Het woonoppervlak kan eenvoudig worden vergroot naar circa 109 m² door het plaatsen van een groter dakraam/dakkapel op de tweede verdieping.

Indeling:
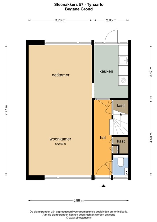
Begane grond: 
hal, modern hangtoilet met fonteintje (2017), vernieuwde meterkast, inbouwkast, trapopgang, trapkast, een doorzonkamer en een dichte keuken. De lichte doorzon woonkamer van ca. 30 m², voorzien van een ingebouwde airconditioning,  zorgt voor een prettige leefruimte. De dichte keuken is zeer eenvoudig en bevindt zich aan de achterzijde en biedt toegang tot de tuin. 

1e verdieping: 
Via de overloop zijn drie slaapkamers bereikbaar van circa 16 m², 13 m² en 6,5 m². Daarnaast bevindt zich hier de moderne, ruim opgezette badkamer (2017) in lichte kleurstelling, voorzien van een inloopdouche, hangtoilet en wastafel. 

2e verdieping: 
Via een vaste trap bereikbare zolder met volop mogelijkheden. Hier kan eenvoudig een extra slaapkamer worden gerealiseerd.  Hier bevindt zich tevens de opstelplaats van de CV-ketel.

Buitenom:
De diepe achtertuin (ca. 16 meter) ligt op het noorden en is onderhoudsvriendelijk aangelegd. Achterin de tuin bevindt zich een vrijstaand houten tuinhuis van ca. 10m2 met een gezellige veranda van ca. 9m2 – dé plek om te ontspannen of lange zomeravonden door te brengen.

Bijzonderheden: 
-Moderne badkamer en toilet (2017)
-Voorzien van 10 zonnepanelen (2022)
-Airconditioning woonkamer met buitenunit Carrier (2022)
-Vernieuwde meterkast (2022)
-Energielabel C
-Voor isolatie zeer interessante subsidiemogelijkheden Ny begun maatregel 29
-CV-ketel Remeha (2011) 
-Kunststof kozijnen
-Begane grond grotendeels voorzien van dubbel glas, verdieping van enkel glas
-Niet-zelfbewoningsclausule van toepassing

Nieuwsgierig geworden?
Deze woning heeft een eigen website! Download de brochure via Funda en ontdek eenvoudig alle details over de woning en de omgeving of ga direct naar steenakkers57.nl voor alle informatie.

Tynaarlo is een karakteristiek brinkdorp, prachtig gelegen nabij het Stroomdallandschap “De Drentse Aa”. Hier vindt u volop mogelijkheden voor recreatie zoals wandelen, fietsen, paardrijden etc. In het dorp zijn diverse voorzieningen aanwezig, waaronder winkels, een basisschool, een actief en rijk verenigingsleven, een natuurzwembad en zelfs een hunebed. 
Daarnaast is de ligging ten opzichte van de A28 bijzonder gunstig met snelle verbindingen naar Groningen en Assen.

Kenmerken