Beschrijving

Een kans om wonen, werken en ondernemen te combineren. Nu te koop aangeboden één van de meest markante panden van het dorp Tynaarlo; de Dorpsstraat 8 8A het -voormalig- café/restaurant met mogelijkheid tot zaalverhuur. Het pand met horecabestemming en een ruime bedrijfswoning is zeer centraal gelegen op zo’n 500 meter van afrit van de A28 tussen Groningen en Assen en voor doorgaand fietsverkeer van Zuidlaren naar Vries v.v. Het object is gelegen op een hoekperceel van 845m2 aan de Dorpsstraat – Schoolstraat en heeft rondom openbare parkeergelegenheid. 

De begane grond is ingericht als restaurant, een sfeervolle multifunctionele ruimte dat door middel van 2 schuifwanden eenvoudig te vergroten is tot bijvoorbeeld een zaal van 225m2 . De begane grond heeft sinds 2020 qua wand- en vloerafwerking en inventaris een enorme upgrade gehad en is daarmee getransformeerd tot een sfeervol modern restaurant; het achtergedeelte is voorzien van een zeer fraaie bar, de gehele vloer van de zaal is voorzien van schuimbeton met daarop een fraaie pvc-vloer. Door 2 schuifwanden kan het vloeroppervlak van het restaurant van ca. 110m2 naar ca. 160m2 tot een complete zaal van ca. 225m2 vergroot worden en uiteraard zijn de 3 ruimtes van ca. 110m2 met bar, de tussenzaal van ca. 50m2 met een terrasdeur en het bargedeelte van ca. 65m2. De ruimtes zijn multifunctioneel inzetbaar en afzonderlijk te gebruiken en daarmee geschikt voor familiefeesten, bedrijfsevenementen, bruiloften en zakelijke bijeenkomsten. 
De begane grond heeft een energielabel C. 
De verdieping heeft een woonfunctie en verkeerd in een redelijke tot matige staat van onderhoud en kan evenals het onderhoud buitenom een upgrade gebruiken. De verdieping heeft een energielabel F.

==================================================================
ALGEMEEN
Het object betreft een markant  horecapand met meerdere gebruiksmogelijkheden of een combinatie van een slijterij, cafetaria, eetcafé, restaurant, vergaderzaal, feestzaal en heeft een terras aan de Dorpsstraatzijde van ca. 150m2 en aan de overkant wordt een plein van ca. 100m2 van de gemeente gepacht zodat er de mogelijkheid is voor een uitbreiding van het terras. 

Ook potentie voor de Woonmarkt is aanwezig. Naast de huidige horecabestemming leent dit object zich uitstekend voor transformatie naar de woonmarkt. Denk aan exclusieve appartementen of woning(-en) of kantoor. Een unieke kans voor ontwikkelaars om op deze toplocatie een bijzonder woonconcept te realiseren. 
Tijdens gesprekken heeft de gemeente de indruk gegeven zich welwillend op te stellen ten opzichte van een  bestemmingsplanwijziging naar wonen of evt. andere bedrijvigheid. 
Tip: informeer bij de gemeente of uw plannen passen binnen een mogelijke toekomstige bestemming. 

De totale verhuurbare vloeroppervlakte bedraagt circa 668m² VVO, onderverdeeld in een kelder van 14,28m2 VVO, De begane grond van 479,90m2 VVO en de eerste verdieping van 173,79m2 VVO. Het perceel is 845m2. Rondom het pand is openbare parkeergelegenheid.

Het dorp en de omgeving: 
Het object is zeer gunstig gelegen in de kern van het dorp Tynaarlo. Tynaarlo is een esdorp in de kop van Drenthe, gunstig gelegen aan de A28 centraal tussen de steden Groningen en Assen. Het maakt deel uit van de gelijknamige gemeente, telt ongeveer 1800 inwoners en ligt in het landschappelijk waardevolle gebied van het Nationaal Landschap de Drentsche Aa en het Unesco Global Geopark de Hondsrug. De omgeving kenmerkt zich door een afwisseling van essen, beekdalen (Drentsche Aa), bos en heide, vaak omschreven als de "groene long" van de regio.

Het dorp heeft een lange geschiedenis van meer dan 1200 jaar en wordt daarom vaak genoemd als een van de oudste nederzettingen in Drenthe. Tynaarlo is een karakteristiek brinkdorp met een actieve dorpsgemeenschap en een rijk verenigingsleven. In de nabije omgeving zijn er diverse mogelijkheden voor recreatie zoals wandelen, fietsen, paardrijden etc. In het dorp zijn enkele winkels, een basisschool, 2 campings, een recreatief villapark, een natuurzwembad en een hunebed. 

Gelet op de opzet en aanwezige voorzieningen, biedt dit object uitstekende kansen voor een creatieve horecaondernemer of investeerder die de potentie van deze locatie wil benutten.

RESTAURANT en DE KEUKEN
Het restaurant is per direct operationeel. De tapinstallaties zijn van de brouwerij;  voor horecagebruik kunnen afspraken hierover worden gemaakt. De inventaris, de keuken en de apparatuur zijn inbegrepen in het aanbod. Qua inventaris zijn er o.a. 34 tafels, 64 stoelen, 3 hoge tafels, 9 barstoelen,       3 roomdividers en een bestekkast. Ook voor het terras is er voldoende meubilair.
Een mobiele kassasysteem met printer voor de bar, printer voor de keuken en 3X handheld waarvan 2 met een pinfunctie.
De zeer ruime professionele keuken heeft een 6-pits RVS gasstel, een RVS bakwand met 3 gasfriteuses van 20 liter (Pitco), een RVS afzuiginstallatie en afzuigkap, een professionele RVS doorschuif vaatwasser 2021 (Hobart),  een waterontharder (Proline),  een RVS warmtebalk, een RVS warmhoudkast, een RVS koelwerkbank , een RVS combisteamer (Rational), 2X dubbeldeurs RVS koelkast (Rendisk) en een 1X dubbeldeurs RVS diepvries.

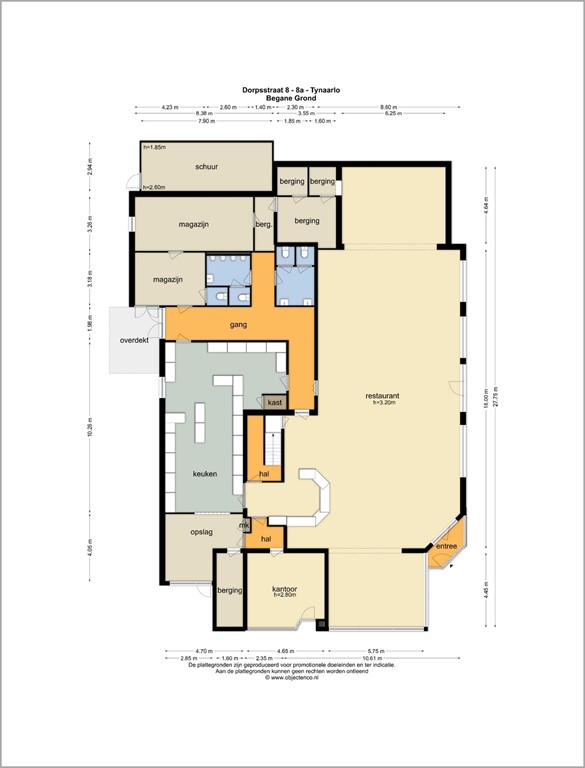
GLOBALE INDELING BEGANE GROND
Tochtportaal met entreedeur naar restaurant/zaal van ca. 225m2 met een sfeervol serregedeelte, twee sfeervolle bars, een toegangsdeur naar de wijnkelder en vanuit de restaurantbar een deur naar de achterhal met meerdere toegangsdeuren naar o.a. de voormalige slijterij met een toegangsdeur naar de Schoolstraat, een bergkast en de voormalige cafetaria met eigen entree naar de Schoolstraat met een open doorgang naar de professionele keuken. Vanuit de keuken kan men met een schopschakelaar en sensor naar de centrale gang die leidt naar 2 separate ruimten met heren- en damestoiletten. Er zijn 2 damestoiletten en een ruimte met 2 vaste wastafels en een ruimte met een herentoilet, 4 urinoirs en een wastafel. Vanuit deze hal is eveneens de achteruitgang bereikbaar en de toegang naar meerdere magazijnen en bergingen. Aangrenzend aan het achterste bargedeelte zijn verregaande voorbereidingen getroffen voor een extra zij-uitgang, een garderobe en een gehandicaptentoilet zodat deze ruimte ook geheel zelfstandig verhuurd kan worden Ook hier is vloer voorzien van schuimbeton met daarop een pvc-vloer.

GLOBALE INDELING 1e VERDIEPING
Op de eerste verdieping van het pand bevindt zich een ruime bedrijfswoning met een gebruiksoppervlakte van ca. 170m² – ideaal voor eigenaren die wonen, werken en ondernemen willen combineren. De woning beschikt over een overloop met inbouwkasten en toegangsdeuren naar het toilet, de badkamer die is voorzien van een douchecabine en een dubbele wastafel, de woonkamer, 2 slaapkamers (Schoolstraatzijde) en toegang tot een grote nog verder in te delen en onafgewerkte ruimte  met de opstelplaats van het witgoed en de CV-ketel. Deze  ruimte geeft tevens toegang geeft tot het platte dak met mogelijkheden voor een groot dakterras, een reeds afgewerkte geïsoleerde slaapkamer en een onafgewerkt vertrek.   

Buitenom:
Aan de voorzijde van het pand bevindt zich het terras van ca. 150m2. Het omheinde terras zorgt voor extra zichtbaarheid en draagt bij aan de uitnodigende uitstraling van het restaurant. Het meubilair geeft het geheel een informele en gezellige sfeer. Het terras is een waardevolle aanvulling en biedt gasten de mogelijkheid om bij mooi weer buiten van hun drankje/maaltijd te genieten. Aan de overzijde van het object is er de mogelijkheid om een plein van de gemeente te pachten met mogelijkheden voor een terras van ca. 100m2. Het pand heeft een pad naar de achteruitgang dat voorzien is van een afdak, een schuttingdeur en een van buitendoor bereikbare berging aan de zijkant van het object. 

De ligging is uitstekend. Het object is zeer centraal gelegen op ca. 500 meter van de afrit van de A28 tussen Groningen en Assen en voor het doorgaand fietsverkeer van Zuidlaren naar Vries v.v. Dit maakt het restaurant uitstekend bereikbaar voor zowel lokale gasten als bezoekers uit de regio. Dankzij de ligging aan een doorgaande weg in het dorpscentrum geniet het object van veel zichtbaarheid en een constante stroom aan verkeer.

Bestemmingsplan Tynaarlo “Kern” de gronden zijn bestemd voor horeca, verkeers- en verblijfsvoorzieningen, groenvoorzieningen, openbare nutsvoorzieningen en bijbehorende voorzieningen en bestaande dienstwoningen. 

Bent u een echte ondernemer dan zult u zeker de juiste invulling vinden voor deze prachtige locatie.

VLOEROPPERVLAKTES
Begane grond 480m² VVO
Verdieping 174m² VVO
Kelder 15m² VVO
Totaal 669m2 VVO
Terras voorzijde 150m²
Terras overkant 100m²
Nb: alle maten zijn 'circa'.

KADASTER
Vries V 937, grootte  845m²

Bijzonderheden:
-Bouwjaar: 1925
-Meterkast vernieuwd met 3X 25 ampere echter voorbereid op 3X 65 ampères
-2 CV-installaties begane grond Remeha 2019 en op de verdieping Blauwe Engel 2008.
-Inclusief alle inventaris
-Aanvaarding kan snel
-Opleveringsniveau Het object wordt opgeleverd in de huidige staat ("as-is, where-is"), vrij van huur en gebruik.
-Geen personele verplichtingen
-Projectnotaris van toepassing.
-Eventuele transacties dienen ter goedkeuring te worden voorgelegd aan de eigenaren van het gebouw. Tot deze goedkeuring verleend is, zijn alle uitgebrachte aanbiedingen geheel vrijblijvend.

Disclaimer.De vermelde informatie is van algemene aard en is niet meer dan een uitnodiging om in onderhandeling te treden. Hoewel zorgvuldig samengesteld kunnen aan de inhoud van deze informatie kunnen geen rechten worden ontleend. Woonaccept Makelaardij & Taxaties aanvaardt geen aansprakelijkheid voor onjuistheden of onvolledigheden. De in deze informatie genoemde metrages zijn allemaal indicatief.

Kenmerken